আজকে আমাদের আলোচনার বিষয় – নিষ্কাশন নালা যা অধ্যায়-১১ এর সিভিল কন্সট্রাকশন ২ এ অন্তভুক্ত। শিক্ষা জাতীয় জীবনের সর্বতোমুখী উন্নয়নের পূর্বশর্ত। দ্রুত পরিবর্তনশীল বিশ্বের চ্যালেঞ্জ মোকাবেলা করে বাংলাদেশকে উন্নয়ন ও সমৃদ্ধির দিকে নিয়ে যাওয়ার জন্য প্রয়োজন সুশিক্ষিত-দক্ষ মানব সম্পদ। কারিগরি ও বৃত্তিমূলক শিক্ষা দক্ষ মানব সম্পদ উন্নয়ন, দারিদ্র্য বিমোচন, কর্মসংস্থান এবং আত্মনির্ভরশীল হয়ে বেকার সমস্যা সমাধানে গুরুত্বপূর্ণ অবদান রাখছে।
বাংলাদেশের মতো উন্নয়নশীল দেশে কারিগরি ও বৃত্তিমূলক শিক্ষার ব্যাপক প্রসারের কোনো বিকল্প নেই। তাই ক্রমপরিবর্তনশীল অর্থনীতির সঙ্গে দেশে ও বিদেশে কারিগরি শিক্ষায় শিক্ষিত দক্ষ জনশক্তির চাহিদা দিন দিন বৃদ্ধি পাচ্ছে। এ কারণে বাংলাদেশ কারিগরি শিক্ষা বোর্ড কর্তৃক এসএসসি (ভোকেশনাল) ও দাখিল (ভোকেশনাল) স্তরের শিক্ষাক্রম ইতোমধ্যে পরিমার্জন করে যুগোপযোগী করা হয়েছে।
Table of Contents
নিষ্কাশন নালা
সংজ্ঞা
খোলা বা বন্ধ যে নালার সাহায্যে ভবনের বা বাসাবাড়ির রান্নাঘর, গোসলখানা, বেসিন ইত্যাদি থেকে নির্গত তরল বর্জ্য বহন করে নগর বা গৌর কর্তৃপক্ষের সিউয়ার পাইপে বা উপযুক্ত নিরাপদ স্থানে নিয়ে যাওয়া হয় তাকে নিকাশণ নালা বলে। বিএনবিসি ২০২০ অনুসারে A drainage system (drainage piping) includes all the piping within public or private premises, which conveys sewage, rain water, or other liquid wastes to a legal point of disposal, but does not include the mains of a public sewer system or a private or public sewage treatment or disposal plant.”

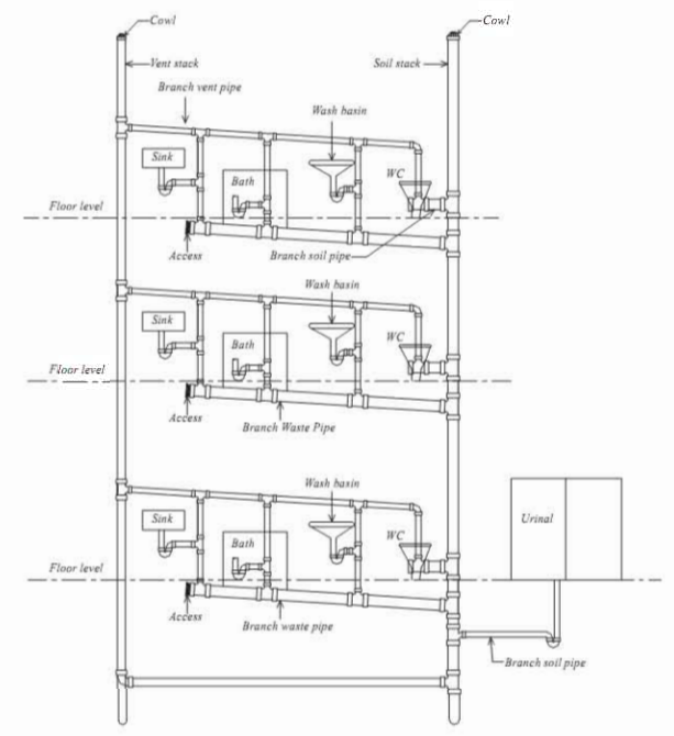
চিত্রঃ একটি বাড়ীর নিষ্কাশণ নালা
রুফ ড্রেনেজ, ওয়াল ড্রেনেজ পাইপ ফিটিংস এর কলা কৌশল
১) রুফ ড্রেনেজে পর্যাপ্ত সংখ্যক আউটলেট বা বৃষ্টির পানি অপসারণের স্থান থাকতে হবে।
Wastowator
২) ওয়াল ড্রেনেজ পাইপের রুফ ড্রেনেজ অংশ তুলনামূলক ঢালু এবং ওপেনিং একটু বড় হতে পারে যাতে পানি জমে না থেকে দ্রুত সরে যেতে পারে।
৩) পাইপ ফিটিংস এমন ভাবে লাগাতে হবে যেন অনায়াসে পানি সরে যেতে পারে। এজন্য বেন্ড ব্যবহার না করে ছাদের কানিশ বৃদ্ধি করা উচিত।
৪) সকেট, বেন্ড ডিজাইনার কর্তৃক প্রদেয় সাইজের এবং ড্রয়িং এ প্রদর্শিত স্থানে স্থাপন করতে হবে। ৫) প্রয়োজনবোধে একটি পাইপ আপার পাইপ কর্তৃক অতিক্রমের ক্ষেত্রে এদের মধ্যকার কোণ ৪৫০ এর কম হবে না।
৬) ঢালু ছাদের পানি নিষ্কাশণের সময় পাইপের মাথায় গাটার স্থাপন করে পানি পাইপের মাধ্যমে নিষ্কাশণ করতে হবে।
৭) ভাল গ্রেডের মান সম্মত পাইপ ও পাইপ ফিটিংস ব্যবহার করতে হবে। প্রয়োজনে ল্যাবরেটরিতে পরীক্ষা করে ব্যবহার করতে হবে।
সারফেস ড্রেনের ক্ষেত্র
ইমারতের বৃষ্টির পানি নিষ্কাশণের জন্য সার্ফেস ড্রেন ব্যবহৃত হয়ে থাকে। সাধারণত ছোট আয়তনের পৌর এলাকাতে এর প্রচলন রয়েছে। বড় নগর বা শহরে সিউয়ার লাইন থাকার কারণে কম ব্যবহার হয়। যেখানে সিউয়ার লাইন নেই সেখানে বৃষ্টির পানি রান্না ঘর হতে উৎপন্ন ধোয়া পানি বা সালেজ (sullage) সার্ফেস ড্রেনের মাধ্যমে সংগ্রহ করা হয়। যেহেতু এধরনের ব্যবহৃত পানি বা সালেজে ক্ষতিকর উপাদান কম থাকে এবং বৃষ্টির পানির সাথে মিশে অধিক মাত্রায় তরল হয়ে পরিশোধিত হয় ফলে সারফেস ড্রেনের মাধ্যমে তা সংগ্রহ করা হয়।
সারফেস ড্রেন নির্মাণের কৌশল
সারফেস ড্রেন ডিজাইন ও নির্মাণের জন্য তিন ধরনের পাইপিং সিস্টেম ব্যবহার হয়। যথা-
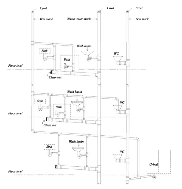
১) সিঙ্গেল স্ট্যাক সিস্টেম (single stack system)
২) ওয়ান-পাইপ সিস্টেম (one-pipe system)
৩) টু-পাইপ সিস্টেম (two-pipe system)
ড্রেন নির্মাণের জন্য প্রয়োজনীয় নকশা পাঠ






আন্ডার গ্রাউন্ড ড্রেন নির্মাণের নিরাপত্তা
ঝুঁকি মূল্যায়ন ও ঝুঁকি নিয়ন্ত্রণে নিরাপত্তা ব্যবস্থাসমূহ
| উল্লেখযোগ্য স্বাস্থ্য এবং নিরাপত্তা ঝুঁকি | ঝুঁকির মাত্রা | ঝুঁকি নিয়ন্ত্রণে নিরাপত্তা ব্যবস্থাসমূহ | |
১ | কাটা গর্তে পড়ার ঝুঁকি। | উচ্চ |
|
| ২ | গর্ত ভেঙ্গে পড়ার বুকি | উচ্চ |
|
| ৩ | মাটি বা অন্য বস্তু পড়ে আঘাত পাওয়া। | মধ্যম |
|
| ৪ | হাতে হাতে মালামাল স্থাপন | নিম্ন |
|
| ৫ | চালুকৃত বা ব্যবহৃত ডেনের সাথে কাজ করা। | উচ্চ |
|
আন্ডার গ্রাউন্ড চেন নির্মাণের কৌশল


